affordable - well planned

“workforce housing”

In today’s complex & challenging housing real estate market, finding affordable housing is a major problem for many first time home buyers , retirees, and clients looking to downsize from their current home. Here at Gestido Construction, we have dedicated over one year of research & development in coming up with well planned floor plans, that can meet our clients current needs while applying affordable means of construction that can make it affordable & comfortable, meeting the basic requirements of South Florida living…

Take a look at our 3 Bedroom / 2 Bath / 1 Car Garage virtual tour below

Furniture & Accessories displayed for spacing purposes only. Call us for further details.

 
 

Below, you can find other floorplan(s) & elevation(s) options to choose from


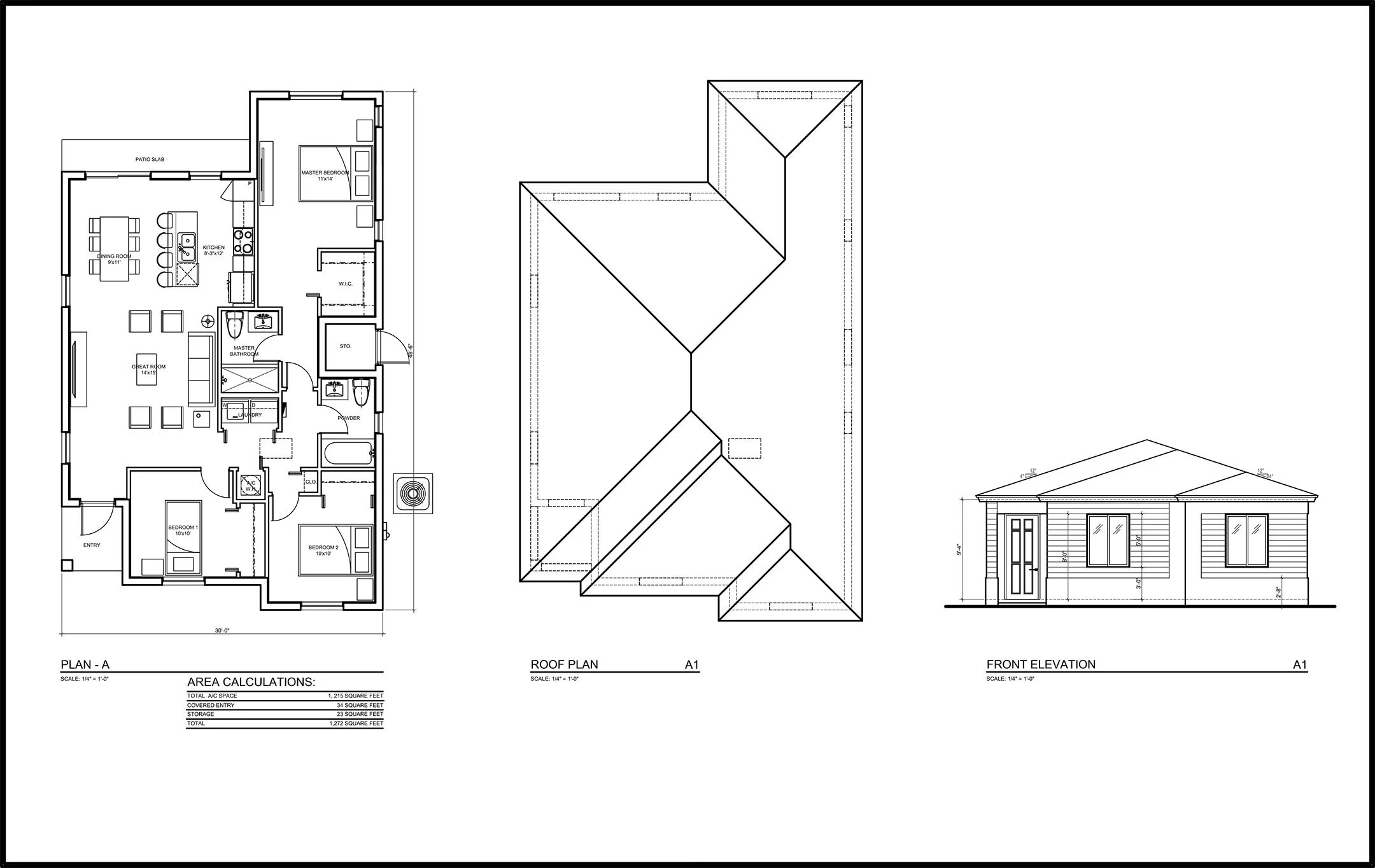
2020_Workforce_Housing_Model_A1.jpg

3 Bedrooms / 2 baths (elevation 1)

Approximately 1,272 square feet

Construction Cost +/-$210,900 (Move-In Ready)

Work_Force_Housing-Model_A1.jpg

2020_Workforce_Housing_Model_A2.jpg

3 bedrooms / 2 baths (elevation 2)

Approximately 1,272 square feet

Construction Cost +/-$210,900 (Move-In Ready)

Furniture & Accessories displayed for spacing purposes only.  Call us for further details.

Furniture & Accessories displayed for spacing purposes only. Call us for further details.


2020_Workforce_Housing_Model_B1.jpg

4 bedroomS / 2 baths (elevation 1)

Approximately 1,493 square feet

Construction Cost +/-$245,000 (Move-In Ready)

Furniture & Accessories displayed for spacing purposes only.  Call us for further details.

Furniture & Accessories displayed for spacing purposes only. Call us for further details.


2020_Workforce_Housing_Model_B2.jpg

4 bedroomS / 2 baths (elevation 2)

Approximately 1,493 square feet

Construction Cost +/-$245,000 (Move-In Ready)

Furniture & Accessories displayed for spacing purposes only.  Call us for further details.

Furniture & Accessories displayed for spacing purposes only. Call us for further details.


2020_Workforce_Housing_Model_C1.jpg

3 bedrooms / 2 baths / 1 car garage (elevation 1)

Approximately 1,529 square feet

Construction Cost +/-$250,900 (Move-In Ready)

Furniture & Accessories displayed for spacing purposes only.  Call us for further details.

Furniture & Accessories displayed for spacing purposes only. Call us for further details.


2020_Workforce_Housing_Model_C2.jpg

3 bedrooms / 2 baths / 1 car garage (elevation 2)

Approximately 1,529 square feet

Construction Cost +/-$250,900 (Move-In Ready)

Furniture & Accessories displayed for spacing purposes only.  Call us for further details.

Furniture & Accessories displayed for spacing purposes only. Call us for further details.

affordability redefined…. all you need is your vacant lot or we can find one for you in your preferred area or neighborhood

Contact Us Today